CONSTRUCTION OPERATIONS AND EARTHWORK
The key to successful construction lies in thorough planning and smart execution. Whether you\'re embarking on a university campus improvement or any large-scale development project, understanding the essential steps can help you avoid costly mistakes, ensure safety, and deliver high-quality results. Let’s break down the key phases of a construction project in simple terms. I\'ll guide you through various techniques and strategies, keeping it conversational and practical so it’s easy to follow whether you\'re an agriculture enthusiast or someone involved in construction projects.
\n\n\n\n\n\n\n\n
1. Pre-Construction: Setting the Stage
\n\n\n\nBefore the first shovel hits the ground, there\'s plenty to do to ensure the project starts on solid footing. This is your prep phase, and skipping any steps here could lead to headaches down the road.
\n\n\n\n
Security First
Install fencing around the entire site. It keeps people out, reduces the chance of accidents, and protects both workers and curious onlookers (especially if the site is near a populated area).
Control Erosion
Depending on the location, you’ll need to have an erosion control plan in place. This keeps nearby water bodies like streams or lakes safe from increased silt or runoff. Simple techniques include using straw bales, bio-bags, or fencing around drainage areas to keep everything in check.
Tree Protection
Got trees or sensitive landscapes? Fence off their root zones to avoid accidental damage. A construction crew may not think twice about parking in the shade of a large tree, but that compacted soil can kill roots over time.
2. Demolition & Site Preparation: Clearing the Way
\n\n\n\nOnce you’ve secured the site and fenced off areas needing preservation, it’s time for demolition. Depending on your project, this phase involves breaking down old structures and removing debris.
\n\n\n\nRecycle Where You Can
This is the time to be environmentally conscious. Separate materials that can be recycled or reused early in the demolition process.
Topsoil is Gold
If there’s topsoil, save it! You can use it later on the project or even on another site.
\n\n\n\n
3. Laying the Groundwork: Infrastructure & Utilities
\n\n\n\nWith the demolition behind you, it’s time to prepare the site for new construction. This involves laying down the infrastructure—think sewage systems, water lines, and electrical work. It’s best to handle these early to avoid digging up your site later.
\n\n\n\nUtility Location & Testing
Make sure utilities are where they need to be, and run soil tests to check for bearing capacity and fertility. Avoid future surprises by handling these checks upfront.
Gravel Pathways
For smooth construction flow, lay gravel along truck routes. It prevents muddy roads and maintains site workability during the build.
\n\n\n\n
4. Primary Construction: Foundations & Structures
\n\n\n\nThis is where things start to take shape. Foundations are dug and poured, creating the base for buildings and other structures. It\'s a critical stage since all other elements depend on a strong foundation.
\n\n\n\nCompaction is Key
Make sure the trenches for pipes and wiring are well compacted. If the ground settles unevenly later, it can cause all sorts of problems.
Concrete Work
Whether it\'s laying down pavement or pouring foundations, ensure everything is well-placed and field-checked. This includes grading stakes to direct the next phase of construction.
\n\n\n\n
5. Secondary Systems & Paving
\n\n\n\nWith the major infrastructure in place, it\'s time for secondary systems—irrigation, lighting, and other utilities that help your project come to life.
\n\n\n\nFlatwork & Specialty Paving
Flatwork (like sidewalks or streets) comes next, but be careful. It\'s done after most of the heavy lifting to avoid damaging newly poured surfaces. For specialized areas, like flagstone or brick pathways, more detailed handwork is often required.
\n\n\n\n
6. Final Touches: Landscaping & Site Furnishings
\n\n\n\nAs construction winds down, landscaping and installing site furnishings are the final touches that make your project shine.
\n\n\n\nPlant Care
Place your plants strategically, ensuring they have proper access to water. In hotter months, be sure to shade them during installation.
Final Walkthrough
Before the fences come down, complete a thorough site cleanup. Check sprinkler systems, lighting, and any other remaining features. Do a final walkthrough with the client to ensure all expectations are met.
\n\n\n\n
Summary: Key Takeaways for Instagram Reels & Infographics
\n\n\n\n- \n
- Pre-Construction Essentials: Secure the site, control erosion, protect trees and sensitive areas. \n\n\n\n
- Demolition & Prep: Clear the site and recycle materials; save topsoil. \n\n\n\n
- Utility & Foundation Work: Plan underground systems early, compact trenches, and run soil tests. \n\n\n\n
- Primary & Secondary Construction: Start with foundation and utilities, then move to paving and secondary systems like irrigation and lighting. \n\n\n\n
- Final Touches: Complete landscaping, install site furnishings, and ensure a clean, safe site. \n
\n\n\n\n
Project Management Schedule Example (Table)
\n\n\n\n| Task | Mar | Apr | May | Jun | Jul | Aug | Sep |
|---|---|---|---|---|---|---|---|
| Plaza design w/ students | 3/29-4/2 | ||||||
| DAG/CPC review(s) | 4/5-4/9 | ||||||
| DD - const. docs 50% | 4/27 | ||||||
| 50% CD owner review | 4/28-4/30 | ||||||
| Const. dwgs./specs 95% | 5/18 | ||||||
| 95% CD owner review | 5/18-5/30 | ||||||
| Const. dwgs./specs 100% | 6/4 | ||||||
| Bid opening | 6/29 | ||||||
| Approval/award | 7/13 | ||||||
| Construction begins | 7/15 | ||||||
| Final completion | 9/17 |
plasticity index than does kaolinite clay, which exhibits lower expansion and contraction. Soils with a higher plasticity index are generally more prone to shrink-swell behavior, which can have significant implications for both landscape design and construction stability.
\n\n\n\nWater in the Soil and Its Effects
\n\n\n\nWater plays a crucial role in determining the mechanical properties of soil. The absorption of water into soil affects its strength, compressibility, and overall stability. Excessive moisture can lead to the softening of soils, which can result in structural settlement or even failure. Conversely, insufficient water content can lead to excessive stiffness and cracking, affecting both plant growth and the integrity of structures built on or near the soil.
\n\n\n\nUnderstanding the movement of water in soil is also essential for plant health, as landscape architects must ensure that plants receive adequate moisture without causing waterlogging, which can reduce soil strength and oxygen availability to roots. In engineering applications, drainage systems must be designed to prevent water accumulation in undesirable areas, ensuring the soil\'s structural integrity and supporting long-term stability.
\n\n\n\nKey Points for Landscape Architects
\n\n\n\n- \n
- Compaction and Soil Stability: Proper soil compaction is necessary for the stability of structures such as walls, foundations, and pathways. However, overly compacted soils may restrict root growth and reduce permeability, requiring a balance between compaction for engineering stability and aeration for plant health. \n\n\n\n
- Shrink-Swell Potential: Soils with high clay content, especially those containing montmorillonite, exhibit significant expansion and contraction with moisture changes. This can cause damage to structures like sidewalks and foundations if not properly accounted for in the design phase. \n\n\n\n
- Geotechnical and Agronomic Soil Considerations: While geotechnical properties focus on the mechanical stability of soils, agronomic considerations focus on plant health. Landscape architects must strike a balance between these two factors, ensuring that soils support both plant growth and structural stability. \n\n\n\n
- Importance of Soil Classification Systems: Familiarity with different soil classification systems (USCS, AASHTO, and USDA) is critical. Each system provides valuable information for different aspects of landscape design, from road construction to plant growth potential. \n
By understanding these principles, landscape architects can create designs that not only meet aesthetic and functional requirements but also ensure long-term durability and success in a variety of environments. Proper collaboration with geotechnical engineers and careful consideration of soil mechanics will help in achieving resilient and sustainable landscape projects.
channel and is often a broad, shallow dip in the landscape that blends into its surroundings. A swale can be grassed or planted, depending on its integration into the overall landscape design, and serves the dual purpose of facilitating drainage and enhancing the aesthetic appearance of the site.
Key Features of a Swale
\n\n\n\n- \n
- Location: Swales are typically placed in areas with gentle slopes but can also be part of steeper slope designs. On steeper slopes, swales help intercept and redirect water flow to prevent erosion and stabilize the slope. \n\n\n\n
- Function: A swale collects surface water and directs it to an outlet, mitigating erosion and controlling water flow during storms. If high stormwater flow is anticipated, swales can be reinforced or designed in combination with other drainage systems. \n\n\n\n
- Design Considerations: When integrated into lawns or other open landscapes, swales should be subtle, maintaining functionality without disrupting the visual appeal of the site. \n
Drainage Trench Design
\n\n\n\nDrainage trenches are used to handle larger volumes of water compared to swales. Their trapezoidal cross-section, with well-defined shoulders, allows for rapid water movement, making them suitable for areas with heavy rainfall or steep slopes. Unlike swales, trenches are often more conspicuous elements in the landscape and may require careful design to blend into the overall aesthetic.
\n\n\n\nKey Features of a Drainage Trench
\n\n\n\n- \n
- High-Flow Capacity: Trench designs are optimized for fast water conveyance and are often used as part of a larger drainage system to direct water to main outlets. \n\n\n\n
- Location: Trenches are typically employed in areas with heavy water runoff, steep slopes, or locations where rapid drainage is essential. \n\n\n\n
- Design Challenges: Due to their more engineered appearance, trenches can be harder to incorporate aesthetically into a landscape design. However, using materials like stone linings can enhance their visual integration. \n
Subsurface Drainage and Seepage
\n\n\n\nSubsurface drainage deals with water moving slowly through the soil, often occurring on gentle slopes or flat areas. Seepage can cause saturation at the surface, leading to waterlogging and instability if not addressed.
\n\n\n\n- \n
- Seepage Solutions: To manage subsurface water, landscape architects may incorporate perforated pipes or gravel beds to intercept and direct water away from sensitive areas, such as building foundations or plant beds. \n
Practical Soil Working Guidelines
\n\n\n\nThe plasticity of soil is critical for determining the optimal conditions for working it:
\n\n\n\n- \n
- Friable State: This is the ideal soil moisture condition for working. The soil is neither too dry nor too wet, allowing it to be easily shaped or spread without causing long-term structural issues. \n\n\n\n
- Hard/Cloddy Soil: Working soil when it is too dry can result in clods that are difficult to break down. These clods, if buried, may persist and create uneven planting surfaces. \n\n\n\n
- Plastic Soil: Wet soil that is too plastic will smear and compact, leading to drainage and aeration problems that are hard to rectify after installation. \n\n\n\n
- Liquid Soil: Soils that are oversaturated will flow and become unstable, hardening into an unworkable condition once they dry. \n

















Surface and Soil Drainage Principles
\n\n\n\nProper drainage planning is essential to prevent erosion, waterlogging, and damage to plants and structures. Well-drained soils, combined with surface and subsurface drainage systems, help maintain soil stability and plant health by managing excess water efficiently.
\n\n\n\nBy integrating swales, trenches, and subsurface drainage systems effectively, landscape architects can ensure that the soil remains stable and suitable for both structural and planting purposes, even under challenging conditions.
Seeping water, when not properly managed, can lead to surface saturation, instability, and potential damage to structures or landscapes. This occurs when subsurface water is forced to the surface, often due to changes in slope or the presence of an impermeable layer like bedrock. There are effective solutions to manage this seepage and prevent associated issues.
Managing Seeping Water:
\n\n\n\n- \n
- Curtain (Interceptor) Drains: The most common and effective method to intercept seeping water is through the installation of curtain drains, which act as barriers to interrupt the water’s flow and redirect it. Curtain drains must extend down to an impermeable layer (such as bedrock) to be effective.\n
- \n
- Open Curtain Drain: This involves creating a trench to expose the subsurface water, allowing it to be drained as surface water. \n\n\n\n
- Covered Curtain Drain: In this method, the trench is filled with gravel or other porous material to allow water to be redirected underground. \n
\n\n\n\n - Subsurface Drainage Systems: All subsurface drainage systems require careful consideration of soil interfaces and filtration to prevent soil particles from entering and clogging the drainage system. Filters play a critical role in this by preventing fine soil particles from migrating into the drainage lines while still allowing water to pass through. \n
Filter Design Requirements for Subsurface Drainage:
\n\n\n\nAccording to guidelines, the filter used in these systems must meet two essential criteria to ensure proper function:
\n\n\n\n- \n
- Flow Capacity: The filter must allow water to flow at a rate equal to or greater than the surrounding soil to prevent clogging. It should have a capacity larger than the soil to ensure continued performance under wet conditions. \n\n\n\n
- Particle Retention: The filter should limit the amount of soil particles passing into the drainage system. After a short period of installation, soil migration should cease to prevent issues like piping, where water erodes soil particles, leading to voids or soil collapse. \n
The two requirements are met when the following conditions (based on particle size analysis) are satisfied:
\n\n\n\n- \n
- For adequate flow: d15f > 4 to 5 x d15p, where d15f is the diameter of 15% passing through the filter and d15p is the diameter of 15% passing through the protected material. \n\n\n\n
- To prevent excessive soil movement: d15f < 4 to 5 x d85p, where d85p is the diameter of 85% passing through the protected material. \n
Additionally, the gradation (particle size distribution) curves of both the filter and protected material must be parallel, which ensures compatibility between the two materials:
\n\n\n\n- \n
- d50f < 25 x d50p, where d50f and d50p represent the median particle diameters of the filter and protected material, respectively. \n
Design Considerations for Drainpipe:
\n\n\n\nThe protected material\'s larger particles should be small enough that they cannot move into the openings of the drainpipe. This prevents the clogging and malfunction of the drainage system.
\n\n\n\nBy following these design principles, landscape architects can ensure effective drainage and soil stability, even in areas where subsurface seepage is a significant issue. Proper drainage helps maintain the integrity of the landscape and prevents long-term damage caused by water movement.
The provided text details the design and installation of drainage systems, focusing on subsurface drainage techniques to prevent water seepage and manage water flow. Here’s a summary of the key points:
- \n
- Water Seepage and Subsurface Drainage:\n
- \n
- Seepage occurs due to changes in slope gradient or the presence of impermeable layers like bedrock, causing water to rise to the surface. \n\n\n\n
- A curtain drain is a common solution, which must reach down to an impervious layer to be fully effective. \n
\n\n\n\n - Drain Filters and Clogging Prevention:\n
- \n
- Drain filters prevent soil particles from entering the drainage system. Two important criteria are filter flow capacity and particle migration prevention. \n\n\n\n
- Formulas such as
d15f > 4-5 x d15p(filter particle size vs. protected material) andd15f < 4-5 x d85p(limiting particle passage) are used to determine appropriate filter sizing. \n\n\n\n - Special precautions should be taken for different types of drains, such as slots, open joints, or circular holes. \n\n\n\n
- Geotextile fabrics can be used as filters in some cases, though they may not work well in all applications, especially with thick nonwoven fabrics. \n
\n\n\n\n - Clogging Issues:\n
- \n
- Clogging can occur due to factors like granular materials, ferric/bacterial buildup, calcium carbonate (tufa), and tree roots. Solutions include careful construction, avoiding geotextiles in certain areas, and using larger circular holes in pipes. \n
\n\n\n\n - Underdrainage System Design:\n
- \n
- Underdrainage is necessary when soil tests indicate poor drainage (less than half an inch per hour in a percolation test). \n\n\n\n
- Designs like the parallel and herringbone drainage patterns are used depending on site conditions, with pipe sizing adjusted for different soil textures. \n\n\n\n
- Exposed outlets should be protected from animals, and perforated pipes should be installed with holes facing downward to prevent clogging. \n
\n\n\n\n - Use of Geotextile Fabrics:\n
- \n
- Geotextile fabrics are often not recommended for wrapping drainage pipes due to clogging risks, especially with unstable soils. Stable soils are necessary for geotextile to function effectively as a filter. \n
\n\n\n\n - Soil Shrink-Swell and Drainage:\n
- \n
- Expansive soils, such as those with high montmorillonite content, can cause shrink-swell issues, damaging structures. Areas with these soils, like parts of Texas, Alabama, and Virginia, need special consideration in construction and drainage design. \n\n\n\n
- The shrink-swell potential of soil is measured using the coefficient of linear extensibility (COLE), and soils with moderate to high shrink-swell potential should generally be avoided for construction. \n
\n
The guidelines in the text ensure that drainage systems are properly designed, using the right filters and materials to prevent clogging and ensuring long-term functionality.
This section discusses various aspects of soil mechanics related to landscape design, focusing on the challenges posed by expansive soils, soil stability, and compaction in construction:
- \n
- Water Withdrawal by Trees on Expansive Soils: Trees planted near buildings can cause collapse of expansive clay soils by withdrawing water from the soil during transpiration. The "1H Rule" suggests planting trees at a distance equal to their mature height from the foundation to prevent damage. This guideline emerged after foundation failures in London and Ottawa. \n\n\n\n
- Soil Stability and Mechanics: Soil stability, or resistance to deformation, is influenced by factors such as particle size and moisture content. Soil strength is essential for geotechnical applications but conflicts with landscape needs, as compacted soil hinders plant root growth. \n\n\n\n
- Forces Affecting Soil Stability:\n
- \n
- Shear: Resistance to rupture along a plane. \n\n\n\n
- Stress: Forces of attraction between soil particles, affected by moisture. \n\n\n\n
- Strain: Reactive forces within soil that disappear once stress is removed. \n
\n\n\n\n - Soil Compaction: Soil compaction, common in engineering, increases strength but may exceed limits for plant root penetration. The Proctor test determines compaction levels, with 85% Proctor being a common target for landscape soils. Excessive compaction can hinder plant growth. \n\n\n\n
- Frost Action: Similar to shrink-swell behavior but involving freezing and thawing of soil. It\'s crucial in regions where soil freezing occurs. \n\n\n\n
- Compaction Correction: If compaction exceeds plant-rooting limits, soil loosening methods (e.g., backhoes or rototillers) are necessary. \n\n\n\n
- Installation Techniques: Proper placement of soil layers ("lifts") and avoiding overcompaction are critical. Excessive compaction can cause settlement issues or block root growth. \n
This guidance, drawn from various studies and best practices, aims to balance the needs of both structural integrity and landscape functionality.
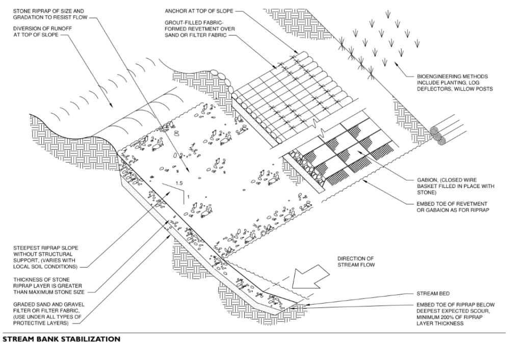
The text provides comprehensive guidelines on embankment and stream bank stabilization, grading, erosion control, and the principles behind effective site earthwork. Here are key takeaways from the sections:
Embankment Stabilization:
\n\n\n\n- \n
- Purpose: To prevent erosion on steep slopes that are exposed to stormwater runoff or flowing streams, as erosion can lead to environmental damage and pollution. \n\n\n\n
- Techniques: Mechanical stabilization methods can be minimized by careful site grading that slows down runoff. Erosion can be controlled during construction using methods like silt fences, straw bales, sediment ponds, and mulching. \n\n\n\n
- Materials: Channels should be lined with erosion-resistant materials such as sod, stone riprap, or erosion-control blankets, especially where high runoff is expected. \n
Site Grading and Earthwork:
\n\n\n\n- \n
- Design Philosophy: Landscape architects aim to integrate buildings and programs seamlessly into a site with minimal visible impact, creating natural contours and avoiding harsh, steep cuts. \n\n\n\n
- Grading for Aesthetics: Grading should consider both functional and aesthetic objectives, enhancing the experience of the site by manipulating landforms to control views and create visual effects, such as a sense of enclosure or openness. \n
Slope and Contour Management:
\n\n\n\n- \n
- Contour Basics: Contours represent elevation changes on the landscape. The closer the contour lines, the steeper the slope. Water naturally flows perpendicular to contour lines. \n\n\n\n
- Slope Calculation: The slope (or gradient) is determined by dividing the rise (vertical distance) by the run (horizontal distance). It can be expressed as a percentage, ratio, or angle. Steeper slopes require special stabilization measures, especially for roads or driveways. \n\n\n\n
- Surface Slopes: Different surfaces require different slope gradients for proper drainage. Lawns, planted areas, athletic fields, and paved surfaces all have optimal slope recommendations, typically ranging from 0.5% to 33%, depending on their use. \n
Grading Plan Preparation:
\n\n\n\n- \n
- Drainage Planning: A critical aspect of site grading is ensuring there is no net increase in runoff to adjacent properties. Drainage basins, retention areas, and swales are common features to manage stormwater. \n\n\n\n
- Balancing Cut and Fill: To minimize construction costs and maintain site balance, the amount of earth removed (cut) should ideally match the amount of earth needed (fill), with allowances for soil shrinkage. \n\n\n\n
- Spot Elevations and Contours: These are key elements in grading plans to precisely control drainage, define elevations, and mark important design points like building corners and drainage structures. \n
Special Conditions:
\n\n\n\n- \n
- Retaining Walls and Slopes: Retaining walls are used for steeper slopes and to stabilize terrain. Contours appear stacked at retaining walls but wrap around the wall face. Walls should blend into the landscape and may need to be turned into the slope to prevent abrupt grade transitions. \n\n\n\n
- Swales and Ditches: These are channels used to manage surface runoff. Swales are shallow and often vegetated, while ditches are deeper and less aesthetically integrated. Swales are preferred for slowing water and promoting infiltration into the ground. \n
This material is foundational for landscape architects, engineers, and site planners who need to design landscapes that are both functional and environmentally sound while ensuring proper water management and erosion control.
\n\n\n\n
This chapter explores the various energy sources and their uses, particularly within the landscape industry. Here are the key points:
Objectives
\n\n\n\nBy the end of the chapter, readers should be able to:
\n\n\n\n- \n
- Recognize different energy sources used in the U.S. \n\n\n\n
- Understand the differences between types of coal and oil extraction methods. \n\n\n\n
- Identify major alternative energy sources and government policies that impact energy use. \n\n\n\n
- Explain how energy distribution works and the role of alternative fuels in landscape equipment and transportation. \n
Key Terms
\n\n\n\nSome important terms include anthracite, biodiesel, biomass, cellulosic ethanol, photovoltaics (PV), LED, propane, tertiary recovery, thermogenic, and more.
\n\n\n\nEnergy in the Landscape Industry
\n\n\n\nEnergy consumption is a significant part of the landscape industry’s expenses, particularly fuel for tools, equipment, and vehicles. Companies often find it difficult to pass rising fuel costs to their customers, so reducing fuel usage becomes a priority. More energy-efficient tools and vehicles, like those using LED lighting or solar-powered landscape lights, can reduce expenses and environmental impact.
\n\n\n\nTraditional vs. Alternative Energy Sources
\n\n\n\n- \n
- Traditional Energy Sources: Fossil fuels like oil, coal, and natural gas, as well as hydroelectric and nuclear energy, are the most common sources. Gasoline and diesel, derived from petroleum, are traditional fuels. \n\n\n\n
- Alternative Energy Sources: Biomass, wind, solar, and geothermal energy are increasingly popular alternatives. These renewable resources can help reduce dependence on non-renewable fossil fuels. \n
Challenges with Energy Use
\n\n\n\n- \n
- Non-renewable Resources: Fossil fuels are limited, and as supplies dwindle, their prices are likely to rise, making alternative energy sources more attractive. \n\n\n\n
- Costs: The unpredictable nature of fossil fuel prices makes long-term budgeting difficult for companies. \n\n\n\n
- Emissions: Fossil fuel combustion releases greenhouse gases like carbon dioxide and pollutants like nitrous oxides and sulfur dioxide. Efforts to regulate these emissions are ongoing, particularly in California, which leads the U.S. in clean air initiatives. \n
Pressures Driving Change
\n\n\n\nCustomer demand for sustainable practices and the cost-saving benefits of energy efficiency are motivating companies to adopt alternative fuels and energy-efficient technologies in the landscape industry.
This section highlights how government policies and initiatives have supported the transition to renewable energy sources in the United States, as well as providing insights into how electricity is generated, the use of fossil fuels, and the advancements in oil extraction techniques.
Government Support for Renewable Energy
\n\n\n\n- \n
- National Energy Act (1978): Encouraged the use of renewable resources, introducing gasohol, a blend of gasoline with at least 10% alcohol from renewable sources. \n\n\n\n
- Energy Tax Act (1979): Provided subsidies for gasohol production. \n\n\n\n
- Volumetric Ethanol Excise Tax Credit (2004): Provided a 51-cent-per-gallon credit for blending ethanol into gasoline. \n\n\n\n
- Renewable Fuel Standard (2005): Mandated the blending of renewable fuels into gasoline, targeting 36 billion gallons by 2022. The policy aimed to reduce emissions and dependence on petroleum. \n\n\n\n
- Beyond Carbon (2019): Launched by Michael Bloomberg in partnership with The Sierra Club, aimed to close coal-fired power plants in the U.S. by 2030. \n
Federal Subsidies for Alternative Energy
\n\n\n\nExamples of key legislation:
\n\n\n\n- \n
- Alternative Motor Fuels Act (1988): Incentives for producing vehicles that use alternative fuels. \n\n\n\n
- Alternative Fuel Motor Vehicle Credit (2005): Tax credits for vehicles using hybrid technology, fuel cells, or alternative fuels. \n\n\n\n
- Business Energy Investment Tax Credit (2015): Corporate tax credit for investments in solar, wind, fuel cells, and geothermal technologies. \n
Energy for Electricity Generation
\n\n\n\nElectricity in the U.S. is generated through various methods:
\n\n\n\n- \n
- Traditional sources: Fossil fuels (coal, natural gas, oil) and nuclear energy. \n\n\n\n
- Renewable sources: Wind, solar (photovoltaics), biomass, hydroelectric, geothermal, and methane from landfills. \n
The U.S. is increasingly transitioning from coal to cleaner energy sources like natural gas, wind, and solar. For instance, in 2008, 49% of electricity came from coal, which dropped to 27% by 2018.
\n\n\n\nNon-Renewable Energy
\n\n\n\nFossil fuels, which include petroleum, coal, and natural gas, are the dominant sources of energy but come with environmental concerns, including the release of carbon dioxide and other greenhouse gases.
\n\n\n\nNatural Gas
\n\n\n\nNatural gas is widely used for electricity generation and heating. It can be extracted via fracking (hydrofracturing), a controversial technique that uses high-pressure water to release gas from underground rocks.
\n\n\n\nOil
\n\n\n\n- \n
- Primary recovery: Extracts oil using natural forces and pumps, recovering about 5-15% of the oil. \n\n\n\n
- Secondary recovery: Uses water or gas to drive oil to a wellbore, recovering 20-40% of the oil. \n\n\n\n
- Tertiary recovery (Enhanced Oil Recovery, EOR): Involves thermal recovery (steam injection), gas injection (using nitrogen or carbon dioxide), or chemical methods to extract more oil. \n
Coal
\n\n\n\n- \n
- Types:\n
- \n
- Anthracite: High carbon content (92-98%), burns cleanly but is expensive. \n\n\n\n
- Bituminous: Contains 60-80% carbon, commonly used in power plants. \n\n\n\n
- Lignite: Low carbon content (25-35%), also used in power plants. \n
\n
Coal’s usage for electricity in the U.S. has declined, with renewables and natural gas becoming more dominant.
Nuclear Energy
In 2009, there were 65 nuclear power plants in the United States, but by 2019, that number had decreased to 59. Despite the reduction in plants, nuclear energy continued to generate around 800 billion kilowatt-hours (kWh) of electricity annually, accounting for approximately 20% of the total U.S. electricity demand. Nuclear power is generated through nuclear fission, the process of splitting atoms—usually uranium-235—which releases enormous amounts of energy.
\n\n\n\nNuclear energy is often seen as a clean energy source because it doesn’t produce carbon emissions like fossil fuels. However, it is also controversial due to the dangers associated with radioactive waste and the potential for its use in nuclear weapons. Furthermore, accidents at nuclear power plants have raised public concerns:
\n\n\n\n- \n
- Three Mile Island (1979): A partial meltdown in Pennsylvania resulted in the release of radioactive gases, leading to increased public opposition to nuclear power. \n\n\n\n
- Chernobyl (1986): A catastrophic explosion in Ukraine caused widespread radioactive contamination and necessitated the evacuation of hundreds of thousands of people. \n\n\n\n
- Fukushima (2011): An earthquake and tsunami severely damaged the Fukushima Daiichi plant in Japan, leading to radiation leaks and long-term health concerns. \n
The disposal of nuclear waste, which remains hazardous for long periods, continues to be a major unresolved issue. Additionally, the risks of accidents and radiation exposure, including increased cancer risks, prevent further scale-up of nuclear power production despite its benefits as a non-carbon energy source.
\n\n\n\nRenewable Energy
\n\n\n\nRenewable energy sources like water, wind, and solar power are among the most sustainable options available, although their widespread use remains limited by technological and infrastructural challenges.
\n\n\n\nHydroelectric Power
\n\n\n\nHydroelectric power is the most widely used form of renewable energy and has been harnessed since the late 19th century. In 2015, it produced 6.1% of the total power generated in the U.S., accounting for 35% of the country’s renewable energy. However, the construction of dams and reservoirs for hydroelectric plants interferes with ecosystems, impacting fish migration, water temperature, and plant and animal life. Most of the suitable locations for hydroelectric dams have already been developed, limiting future expansion.
\n\n\n\nSome of the largest hydroelectric power plants in the U.S. include:
\n\n\n\n- \n
- Grand Coulee Dam (Columbia River) – 6,809 MW capacity \n\n\n\n
- Hoover Dam (Colorado River) – 1,345 MW capacity \n\n\n\n
- Niagara Falls (Niagara River) – 2,515 MW capacity \n
Wind Energy
\n\n\n\nWind energy has seen significant growth in the U.S., with capacity rising from 2,472 MW in 1999 to 97,223 MW in 2018. Wind power helps reduce emissions of harmful pollutants like sulfur dioxide and nitrogen oxides. By 2050, wind energy could prevent the emission of 12.3 gigatonnes of greenhouse gases.
\n\n\n\nFederal and state incentives, such as tax credits and property tax exemptions, support wind energy investments. The Energy Improvement and Extension Act of 2008 extended tax credits for wind energy production. The U.S. Department of Energy’s Wind Vision report outlines a scenario where wind energy could meet 10% of U.S. electrical demand by 2020, 20% by 2030, and 35% by 2050. However, achieving this goal will require continued investment and technological innovation.
\n\n\n\nWind energy has the potential for massive expansion. According to estimates by the National Renewable Energy Laboratory, the U.S. could harness up to 10,640,080 MW of wind energy capacity.
Key Concepts from the Text
- \n
- E-85 Gasoline and Electric Vehicles:\n
- \n
- E-85 gasoline is a fuel with a high ethanol content, only usable in vehicles specifically designed for it. \n\n\n\n
- Electric vehicles (EVs) use batteries, primarily nickel-metal-hydride (NiMH) and increasingly lithium-ion, which are rechargeable through electrical outlets. \n\n\n\n
- Hybrid vehicles combine gasoline and electric power, with some trucks, such as those from Kenworth, using diesel-electric hybrid engines. \n
\n\n\n\n - Hydrogen Power:\n
- \n
- Hydrogen-powered vehicles, though still limited, show potential with models like the Toyota Mirai and Hyundai Nexo. \n\n\n\n
- Hydrogen is mainly produced from natural gas (95% as of 2014), and though there is research and progress in this field, hydrogen power remains largely under development. \n
\n\n\n\n - Energy-Efficient Lighting:\n
- \n
- Energy Star ratings indicate energy-efficient outdoor lighting, including solar-powered options. \n\n\n\n
- LED lighting is highly efficient, lasting ten times longer than traditional bulbs and using significantly less energy. LEDs also generate little heat, enhancing energy efficiency. \n\n\n\n
- Motion-activated lights save energy by turning on only when movement is detected. \n
\n
Review Questions
\n\n\n\n- \n
- Traditional and Alternative Energy Sources:\n
- \n
- Traditional: Coal, petroleum. \n\n\n\n
- Alternative: Solar power, wind power. \n
\n\n\n\n - California Emissions Agency:\n
- \n
- The California Air Resources Board sets emissions regulations for the state. \n
\n\n\n\n - Fracking:\n
- \n
- Fracking is a method to extract oil and natural gas by injecting high-pressure fluid into underground rock formations. It is controversial due to environmental concerns, including water contamination and increased seismic activity. \n
\n\n\n\n - Ethanol Additives in Fuel:\n
- \n
- E-85 and gasohol are two types of ethanol additives. E-85 contains 85% ethanol, while gasohol contains at least 10% ethanol mixed with gasoline. \n
\n\n\n\n - U.S. Oil Reserves:\n
- \n
- While specific figures are not given in the text, U.S. oil reserves have been declining, leading to higher extraction costs compared to 2000. \n
\n\n\n\n - Types of Coal:\n
- \n
- The three major types are anthracite, bituminous, and lignite. Bituminous coal is primarily used in electric power plants. \n
\n\n\n\n - Nuclear Energy as "Clean":\n
- \n
- Nuclear energy is considered clean because it does not produce carbon emissions during electricity generation. \n
\n\n\n\n - Disadvantages of Natural Gas:\n
- \n
- Although cleaner than coal, natural gas extraction and combustion release methane, a potent greenhouse gas, and the extraction process can have environmental impacts. \n
\n\n\n\n - Batteries in Electric Vehicles:\n
- \n
- Nickel-metal-hydride (NiMH) batteries are currently used, but lithium-ion batteries are expected to become more common in the future. \n
\n\n\n\n - Hydrogen Power in Landscape Equipment: \n
Hydrogen power is not used in landscape equipment yet due to limitations in fuel cell efficiency on small scales, though breakthroughs are being made.
\n\n\n\n
About Us
\n\n\n\nWelcome to Agriculture Novel, your go-to source for in-depth information and insights into the world of agriculture, hydroponics, and sustainable farming. Our mission is to educate, inspire, and empower a new generation of farmers, hobbyists, and eco-conscious enthusiasts. Whether you’re interested in traditional farming practices or modern innovations, we aim to provide comprehensive guides, expert tips, and the latest updates in agriculture and urban farming.
\n\n\n\nAt Agriculture Novel, we believe in the power of knowledge to transform the way we grow, sustain, and nourish our world. Explore our articles on topics like Fruit Growing Guide, Hydroponics, Plant Deficiency Guide, and more.
\n\n\n\nThank you for joining us on this journey towards a greener, more sustainable future!
About Agronique Horizon
At Agronique Horizon, we specialize in delivering comprehensive digital marketing and web development solutions tailored for the agriculture and hydroponics industries. From custom website design and app development to social media management, we provide end-to-end support for brands aiming to make a meaningful impact. Our team also offers innovative solutions for the real estate sector, bringing precision and visibility to your projects. Learn more about our services here and discover how we can elevate your digital presence